Unami vietnamese bistro project

BISTRO

UMAMI
VIETNAMESE

WOOD & REDS
FOR
DAILY
GATHERINGS

⁄⁄ LOCATION: BUDAPEST

⁄⁄ PROJECT TYPE: HOSPITALITY

⁄⁄ AREA: 110 M2

⁄⁄ YEAR OF DESIGN: 2021

Unami vietnamese bistro Unami vietnamese bistro

Umami’s new Vietnamese bistro outside of downtown reflects the vibrant energy and colors of Asia with a brave and thoughtful approach. The small-scale restaurant is filled with warm tones and wood surfaces, creating a cozy atmosphere with its lighting pieces. Simple, wall-mounted plants add a natural feel to the busy city environment and break up the red toned color scheme.

A transparent glass surface offers a glimpse of the food specialties offered by this new brand.

Unami vietnamese bistro
Unami vietnamese bistro
Unami vietnamese bistro

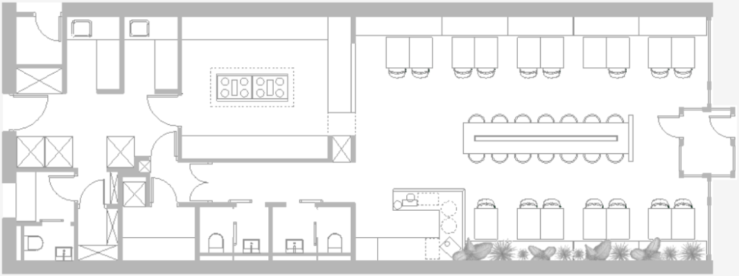
The layout was carefully designed to ensure proper spacing for the walking zone. Long, comfortable benches accompany tables and designer chairs running along the main walls, creating a visually appealing frame. In between these seating areas, a long bar table was placed, adding an element of movement to the space with its height.

To showcase the special products and asian ingredients, custom-designed shelves were planned above the bar table, providing an eye-catching display for visitors.